Euro Para Birimi
  • USD/RUB75.7632
  • GBP/RUB102.6458
  • TRY/RUB1.6761
  • EUR/RUB88.6429
Alanya
+16°C
20.1°C
2285apartmanlar on site
  • Favorilerim
  • Karşılaştır

Yekta Green Life Gazipasa Residence A
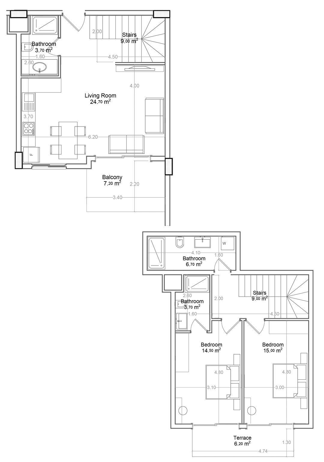
Plan №20 111.70 m2 2+1

Proje Özellikleri
Diğer İmkanlar
  • Açık havuz
  • Video izleme
  • Jeneratör
  • Çocuk oyun alanı
  • Bahçe
  • Duvarla çevrili alan
  • Yürüyüş yolları
  • Peyzaj tasarımı
  • Aqua park
İç donanım
  • Duş kabini
  • Uydu TV
  • İnce İşçilik
  • Sitede Hamam
  • Buhar odası
  • Fin saunası
  • Kapalı ısıtmalı havuz
  • Tesis bünyesinde Wi-Fi internet erişimi
  • Fitness Salonu
Sosyal Tesis Olanakları
  • Dinlenme alanı
  • Asansör
Değişkenler
Müsait
İstek detayları
Ücretsiz Danışmanlık

Deneyimli yöneticilere danışın

Sibel Kaya
Satış Temsilcisi